2634 Sq Ft
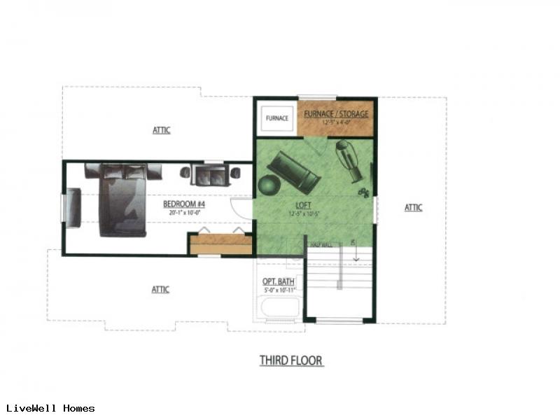
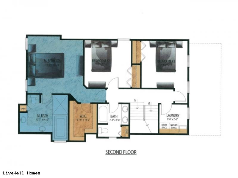
4 Bedrooms
3.5 Bathrooms
Available :
May 2015
1072 Davis Road, Birmingham, Michigan 48009
$ 695,000 Exterior Interior Floor Plan
Description...
1072 Davis Road, Birmingham, Michigan 48009
Birmingham, MI - Residential - Sold
New Homes in Birmingham
This custom new home is located in one of the most desirable locations in Birmingham, Michigan. Located just west of the ever popular Woodward Ave. The property is located directly across from Howarth Park, giving this custom home a perfect family environment. Howarth Park is know to be the perfect meeting place for all the families in the neighborhood.
This new home is schedule to start construction in Sept of 2014 and will be completed in mid-February 2015. This is a “custom” new home build. What does that mean? We provide the plan and give you full access to customize this house to fit your needs and wants, turning this Live Well House into your Live Well Custom Home! After all, this is your home and it is our goal to make it fit you and your family in every way possible.
You know how annoying it is to continuously have to move your cars/trucks around because of the lack of parking space and garage access? Well, this property is set on a charming corner lot which allows for direct access for a large 2 cars to the garage. ***No more moving of cars to get out of your driveway for people with different schedules. Being that it is a corner lot, this property opens the doors to that one thing we all desire in our lives and find it hard to reach living in a busy city…PRIVACY!!
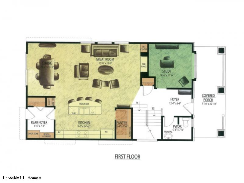
With 2,645 sq ft, this 3 story colonial has 4 bedrooms, 3.5 baths and ample room to customize it to fit your lifestyle.
Standard features include:
- 42” wide x 8’ high wood front door that opens up to 9’ ceilings.
-Hardwood flooring throughout the first level.
-Floating island kitchen table.
-Maple cabinets.
-Granite counter tops throughout your home.
The exterior of the new home with have a modern look with a curve front porch roof and your choice of stone on the front.
FOR MORE INFORMATION ON THE STANDARD FEATURES FOR THIS HOME, QUESTIONS, CONCERNS OR TO SET UP A FREE CONSULTATION TO START THIS EXCITING JOURNEY INTO CUSTOMIZING A NEW HOME FIT TO YOU AND YOUR FAMILIES PERSONAL NEEDS AND WANTS CONTACT Live Well Custom Homes.
- ADDRESS: 1072 Davis Road, Birmingham, Michigan 48009
- SCHOOL: Birmingham School District


