2634 Sq Ft
4 Bedrooms
3.5 Bathrooms
2 Garages
Available :
Nov 2015
1086 Davis Road, Birmingham, Michigan 48009
$ 695,000 Exterior Interior Floor Plan
Description...
1086 Davis Road, Birmingham, Michigan 48009
Birmingham, MI - 3 story colonial - For Sale
New Home In Birmingham
This new home has one of the most
desirable locations West of Woodward. It is located directly across from
Howarth Park that features a family friendly environment. It’s a great place to
meet neighbors and make new friends. It
also is a great place for your kids to play and you get to watch them.
This corner lot homes has easy access to your 2 car garage
without anyone having to move their car for the other person.
This new home was started on May 21
and will be completed in Mid- October 2015. As soon as someone purchases home, the Buyer
than can make any and all custom change they would desire. As the homes is
being built , builder may add additional features which may cause the price to
increases.
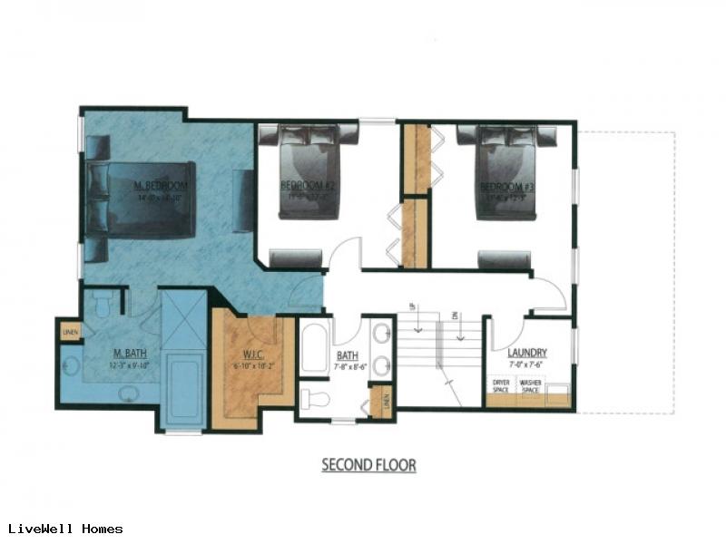
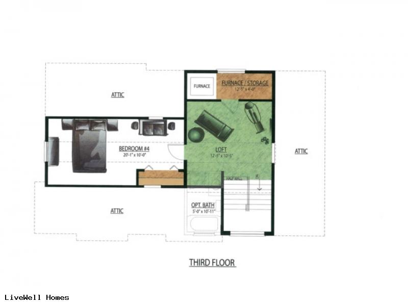
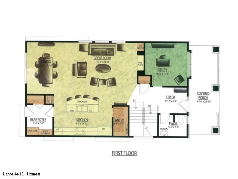
This new home will be 2645 Square
Feet, 3 stories colonial, with 4 bedrooms and 3.5 baths. Some of the standard
feature are a 42” wide x 8’ high wood front door that opens up to an open floor plans that has 9’
ceiling , complete wood floor on the first floor, a 8’ X 3’ floating island
table in kitchen, maple cabinet , granite tops throughout the home and much
more.
Again, once purchased, the Buyer will
have the ability to customize the home to your family needs.
To learn more about our builder and other
new homes for sale in Birmingham, visit our website @ http://rickmerlini.com/ OR
You tube
http://www.youtube.com/watch?v=48gTs_-B1ys
This 3 story colonial is 2634 Square Foot , 4 Bedroom, 3 Full Baths and 1/2 Baths
$675,000
20' x 21' - 2 Car Detached Garage Standard
Stone on front columns Standard
Basement Walls 8'6" high Standard
42" Wide x 8' High Custom Craftsmen's style Wood Front Door Standard
Hardi Plank Siding With Aluminum trim for maintenance free exterior Standard
8' High doors on complete first floor Standard
2 - 90 Plus Furnaces and 2 - 13 Seer A/C with 2 Programmable Thermostat for even Heat and Cooling
throughout the home for every season Standard
Tile in all bathroom. Standard
Maple Cabinets , Shaker door front and painted white with Stained island. All other bathrooms
Stained dark Cocoa. Standard
Laundry room Cabinet with sink. Standard
White ledges Stone on fireplace half way with Mantel Standard
White marble subway tile on kitchen back splash Standard
Appliances Allowance of $6,000 Standard
Hardwood Flooring on complete first floor Standard
Oak End cap on stair case to second floor Standard
42" Gas Fireplace Standard
Frameless Master Bathroom shower door Standard
Delta Brush Nickel finish plumbing fixture Standard
Lever door handles Brush nickel or chrome. Standard
Total Investment $675,000
Possible Options that Can be added :
Finish Basement with 1/2 Bath $ 20,000
Upgrade Modern Plumbing Fixtures $ 3,500
Stone belt on 2 sides $ 3,371
Stone belt on 3 sides $ 5,563
Sod , Sprinklers and mulch beds $ 7,235
54" Uppers in kitchen with Glass doors $ 1,700
Add LED lighting to the upper cabinets above Uppers and Lowers only $ 975
Add LED lighting to the upper cabinets above Uppers only $ 565
Hide plugs in kitchen back wall $ 375
- ADDRESS: 1086 Davis Road, Birmingham, Michigan 48009
- SCHOOL: Birmingham School District


