Email us at : info@rickmerlini.com

  (248) 677-8484

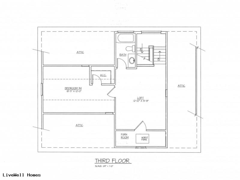
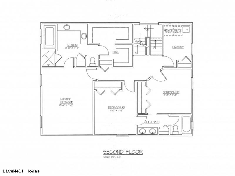
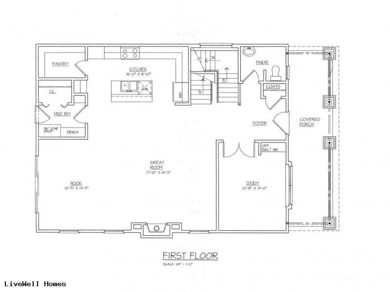
2981 Sq Ft 4 Bedrooms 3.5 Bathrooms

409 Southlawn, Birmingham, Mi 48009

$ 695,000 Exterior Interior Floor Plan

Description...

409 Southlawn, Birmingham, Mi 48009

Birmingham, MI - 3 story colonial - Sold

New Home In Birmingham

 This new home is schedule to start construction in March of 2014 and will be completed in October- 2014, just in time for next school year.

This location is perfect for a young family with kids since it is located across the street from Peirce Elementary School. Just imagine being able to watch your kids walk to school from the comfort of your new home.

This new construction home has one of Birmingham’s best open floor plans.   It is 2891 Square Feet, 3 stories Colonial with 4 bedrooms and 3.5 baths. Some of the standard feature are  a 42” wide  x 8’ high wood front door that  opens up to a home that has 9’ ceiling , complete wood floor on the first floor, a 8’ X 3’ floating island table in kitchen, maple cabinet , granite tops throughout the home and much more.

Purchase the home before it is started and you will have the ability to customize the home to your family needs. 

  • ADDRESS: 409 Southlawn, Birmingham, Mi 48009
  • SCHOOL: Birmingham

Property Map...